VEDTEKNE REGULERINGSPLANAR

Geoplan AS har lang erfaring med offentleg og privat arealplanlegging. Firmaet har vore engasjert i sentrumsplanar, bustadfelt og fritidsbustadfelt. Me gir råd i planprosessen, utarbeider arealdel til kommuneplanar, reguleringsplanar (områdeplan/ detaljplan), illustrasjonsplanar, stadanalysar, moglegheitsstudiar, situasjonsplanar og vegplanar med vegprofilar. Me har utstyr og kompetanse for datainnsamling og produksjon av arealplanar i samsvar med Kommunal- og distriktsdepartementet sine rettleiarar. Alle planar vert framstilt digitalt på SOSI-format. Me nyttar Gemini terreng og ArchiCAD.

 

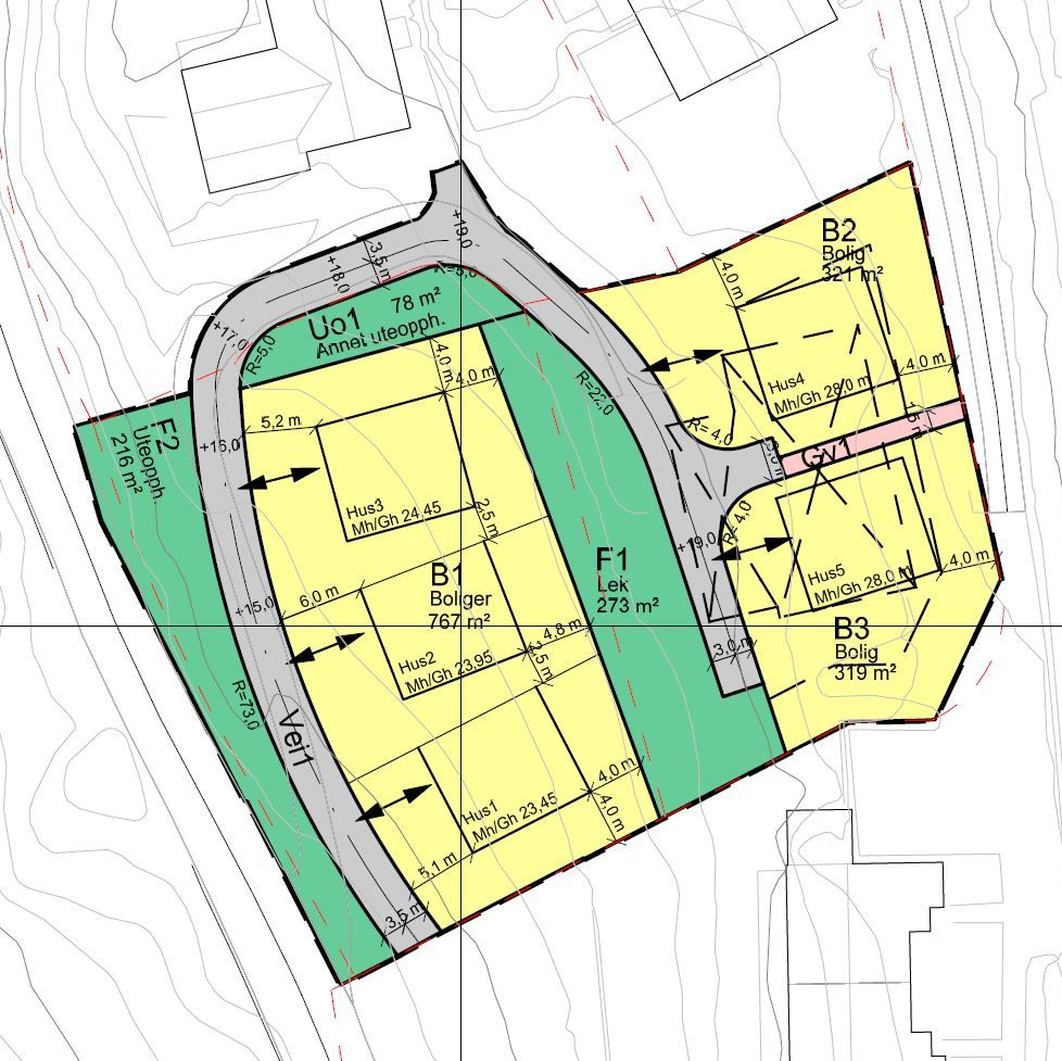
Reguleringsplan for Skoglund


PlanID: 4622 20190004

Prosjekt: Reguleringsplan for nytt bustadfelt i Vikøy
Stad: Vikøy, Kvam herad
Planstatus: Vedteken 20.10.2021

Reguleringsplan for Solhaug på Tangerås


PlanID: 4622 20200003

Prosjekt: Reguleringsplan for nye leilegheiter på Tangerås
Stad: Strandebarm, Kvam herad
Planstatus: Vedteken 20.10.2021

Reguleringsplan for N68 Valland


PlanID: 4622 20190011

Prosjekt: Reguleringsplan for næringsområde N68 på Valland
Stad: Norheimsund, Kvam herad
Planstatus: Vedteken 20.10.2021

Reguleringsplan for Øvre Haukås - Gråskorv


PlanID: 4622 20170001

Prosjekt: Reguleringsplan for nytt hyttefelt mot Haukås i Strandebarm
Stad: Strandebarm, Kvam herad
Planstatus: Vedteken 20.10.2021

Reguleringsplan for Kvam Vidaregåande Skule


PlanID: 4622 20190006

Prosjekt: Reguleringsplan for ny vidaregåande skule i Norheimsund i Kvam
Stad: Norheimsund, Kvam herad
Planstatus: Vedteken 20.10.2021

Reguleringsendring for Røyro


PlanID: 4622 19870002a

Prosjekt: Mindre reguleringsendring av føresegnene til planen. Auka utnyttingsgrad til 150 m² for utvalde bruksnummer.
Stad: Kvamskogen, Kvam herad
Planstatus: Vedteken 25.06.2021

 

Reguleringsendring for Brennehaugen


PlanID: 4622 20010003c

Prosjekt: Mindre reguleringsendring av område B8 i reguleringsplan på Brennehaugen.
Stad: Noheimsund, Kvam herad
Planstatus: Vedteken 09.06.2020

 

Reguleringsplan for Duus - Fonnaland

PlanID: 4622 20190002
Prosjekt: Detaljreguleringsplan for fritidsbustad på Fonnaland
Stad: Fonnaland, Norheimsund i Kvam herad
Planstatus: Vedteken 16.06.2020

 

Reguleringsendring B12, Haug i Bordalen

PlanID: 4621 21352011004
Prosjekt: Mindre reguleringsendring av B12 i reguleringsplan Haug i Bordalen
Stad: Bordalen, Voss herad
Planstatus: Vedteken 31.01.2020

 

Reguleringsendring Lunderdalshaugane

PlanID: 4618 122720130006
Prosjekt: Mindre reguleringsendring frå steinbrot til fritids- og turistføremål
Stad: Torsnes, Jondal i Ullensvang kommune
Planstatus: Vedteken 21.01.2019

 

Reguleringsendring Øvre - Øystese

PlanID: 4622 20090006a
Prosjekt: Mindre reguleringsendring av ny tilkomstveg
Stad: Øystese, Kvam herad
Planstatus: Vedteken 05.02.2019

Reguleringsplan for del av Fureberghovden


PlanID: 4622 20180001

Prosjekt: Regulering av eksisterande hyttefelt som opnar opp for 3 nye hytter
Stad: Kvamskogen, Kvam herad
Planstatus: Vedteken 07.05.2019

Reguleringsendring Haldeplassen - Kaldestad


PlanID: 4622 20060012e

Prosjekt: Regulering av gang og sykkelveg til Hardanger Brygge
Stad: Norheimsund, Kvam herad
Planstatus: Vedteken 08.08.2018

 

Reguleringsplan for Streite

PlanID: 4618 122720130005
Prosjekt: Detaljreguleringsplan for fritidsbustadar på Kysnes
Stad: Kysnes, Jondal i Ullensvang kommune
Planstatus: Vedteken 27.11.2019

Reguleringsplan for Lambanesheiane

PlanID: 4624 1241201706
Prosjekt: Detaljregulering for 6 nye bustadar i Eikelandsosen i Fusa
Stad: Fusa, Bjørnafjorden kommune
Planstatus: Vedteken 15.02.2018

Reguleringsendring for Linga campingplass og hytte

PlanID: 4622 20100017a
Prosjekt: Mindre reguleringsendring for utviding av eksisterande campingplass
Stad: Linga, Kvam herad
Planstatus: Vedteken 30.10.2017

Reguleringsendring for Straumen - Sandven nord

PlanID: 4622 20050001a
Prosjekt: Mindre reguleringsendring av B3 i reguleringsplan for Straumen - Sandven nord
Stad: Norheimsund, Kvam herad
Planstatus: Vedteken 21.08.2018

 

Reguleringsplan for Notanes

PlanID: 4622 20170003
Prosjekt: Detaljregulering for nytt reinseanlegg på Notanes
Stad: Øystese, Kvam herad
Planstatus: Vedteken 16.06.2020

 

Reguleringsplan for Longelia

PlanID: 4622 20110016
Prosjekt: Detaljreguleringsplan for fritidsbustadar på Kvamskogen
Stad: Kvamskogen, Kvam herad
Planstatus: Vedteken 26.03.2019

Reguleringsendring for Hagen del II og III

PlanID: 4622 20150005a
Prosjekt: Mindre endring av reguleringsplan for Sandvenhagen del II og III, flytte areal for teknisk anlegg.
Stad: Sandvenhagen, Norheimsund i Kvam herad
Planstatus: Vedteken 30.01.2018

Reguleringsendring for Haldeplassen - Kaldestad, I2- område 

PlanID: 4622 20110003
Prosjekt: Mindre endring av reguleringsplan for Haldeplassen - Kaldestad. Deling av område I2 i 3 delar.
Stad: Norheimsund i Kvam herad
Planstatus: Vedteken 15.08.2015

Reguleringsplan for Svåsandhagen

PlanID: 4618 12272014001
Prosjekt: Detaljregulering av nytt bustadfelt i Svåsandhagen.
Stad: Jondal, Ullensvang kommune
Planstatus: Vedteken 30.09.2015

Reguleringsplan for bustadar på Valland

PlanID: 4618 20150003
Prosjekt: Detaljregulering av bustader med høg utnytting med tilhøyrande infrastruktur, parkering og uteområde.
Stad: Valland, Norheimsund i Kvam herad
Planstatus: Vedteken 01.11.16

 

Reguleringsplan for Skårane, Dalen, Leite og Vassværena

PlanID: 4622 20130006
Prosjekt: Detaljreguleringsplan for fritidsbustadar på Kvamskogen
Stad: Kvamskogen, Kvam herad
Planstatus: Vedteken 16.06.2020

 

Reguleringsplan for Kvednaskogen

PlanID: 4622 20150004
Prosjekt: Detaljreguleringsplan for fritidsbustadar på Kvamskogen
Stad: Kvamskogen, Kvam herad
Planstatus: Vedteken 17.12.2019

 

Reguleringsplan for Kvernuri

PlanID: 4622 20150004
Prosjekt: Detaljreguleringsplan for utviding av eksisterande steintak 
Stad: Kvernuri i Jondal, Ullensvang kommune
Planstatus: Vedteken 20.06.2018

 

Reguleringsplan for Gråsteinsdalen

PlanID: 4622 20140008
Prosjekt: Detaljreguleringsplan for hytteområde på Kvamskogen
Stad: Gråsteinsdalen, Kvamskogen i Kvam herad
Planstatus: Vedteken 19.11.2020

 

Reguleringsplan for Tryglakleiv

PlanID: 4622 20140007
Prosjekt: Detaljreguleringsplan for hyttefelt på Kvamskogen
Stad: Kvamskogen, Kvam herad
Planstatus: Vedteken 12.06.2018

 

Reguleringsplan for Bakka - Breievne

PlanID: 4622 20140005
Prosjekt: Detaljreguleringsplan for industriområde i Strandebarm
Stad: Strandebarm, Kvam herad
Planstatus: Vedteken 27.09.2016

Reguleringsplan for Vassel gard

PlanID: 4618 12272013003
Prosjekt: Detaljreguleringsplan for fritidsbustadar på Vassel gard
Stad: Vassel i Herand, Ullensvang kommune
Planstatus: Vedteken 30.04.2014

 

Reguleringsendring for Falckeigedomen

PlanID: 4622 20120010
Prosjekt: Reguleringsendring av reguleringsplan for Falckeigedomen. Legge til rette for vegar  til eksisterande hytter.
Stad: Kvamskogen, Kvam herad
Planstatus: Vedteken 17.12.2013

 

Reguleringsendring for Kvinnhovden

PlanID: 4622 19960001a
Prosjekt: Mindre endring for utviding av storleik på regulerte hytter
Stad: Kvamskogen, Kvam herad
Planstatus: Vedteken 06.06.2018

 

Reguleringsplan for Haukeli

PlanID: 4622 20120006
Prosjekt: Detaljreguleringsplan for utviding av eksisterande natursteintak 
Stad: Haukeli i Øystese, Kvam herad
Planstatus: Vedteken 30.09.2014

 

Reguleringsplan for Mølfjell

PlanID: 4621 123520120031
Prosjekt: Detaljreguleringsplan for Kårdal hyttegrend
Stad: Kårdal, Voss herad
Planstatus: Vedteken 18.09.14

 

Reguleringsplan for Tolo

PlanID: 4622 20110010
Prosjekt: Detaljreguleringsplan for sentrumsnær bustadbygging i Norheimsund
Stad: Tolo, Norheimsund i Kvam herad
Planstatus: Vedteken 06.06.14

 

Reguleringsplan for Ramsjona

PlanID: 4622 20110004
Prosjekt: Detaljreguleringsplan for fritidsbustadar
Stad: Ramsjona, Tørvikbygd i Kvam herad
Planstatus: Vedteken 11.12.2012

 

Reguleringsplan for Hauge

PlanID: 4617 20120031
Prosjekt: Detaljreguleringsplan for bustader på Hauge
Stad: Hatlestrand, Kvinnherad kommune
Planstatus: Vedteken 19.06.14

Reguleringsplan for Haug i Bordalen

PlanID: 4621 12352011004
Prosjekt: Detaljreguleringsplan for bustadar på Bordalen
Stad: Bordalen, Voss herad
Planstatus: Vedteken 25.10.2012

Reguleringsendring for Lauvfjellet

PlanID: 4624 1241201102
Prosjekt: Detaljreguleringsplan for hyttefelt  i Fusa
Stad: Fusa, Bjørnafjorden kommune
Planstatus: Vedteken 16.02.2017

Reguleringsendring for Tunet

PlanID: 4622 20100002
Prosjekt: Detaljreguleringsplan for sentrumsnært område
Stad: Øystese, Kvam herad
Planstatus: Vedteken 18.06.2013

Reguleringsplan for Straumen - Småbåthamna

PlanID: 4622 20100037
Prosjekt: Detaljreguleringsplan for sentrumsnær bustadbygging i Norheimsund
Stad: Norheimsund, Kvam herad
Planstatus: Vedteken 16.12.2014

Reguleringsplan for Sælenveien

PlanID: 4601 120111320012
Prosjekt: Detaljreguleringsplan for bustadfelt i Fyllingsdalen
Stad: Fyllingsdalen, Bergen kommune
Planstatus: Vedteken 15.12.2015

 

Reguleringsplan for Kvitno II

PlanID: 4621 12352011006
Prosjekt: Detaljreguleringsplan for fritidsbustader på Kvitno
Stad: Bordalen, Voss herad
Planstatus: Vedteken 25.10.2012

 

Reguleringsplan for Spildo

PlanID: 4621 12342010001
Prosjekt: Detaljreguleringsplan for massedeponi
Stad: Spildo i Granvin, Voss herad
Planstatus: Vedteken 13.06.2012

 

Reguleringsplan for Kvitno

PlanID: 4621 123505003
Prosjekt: Detaljreguleringsplan for fritidsbustader på Kvitno
Stad: Bordalen, Voss herad
Planstatus: Vedteken 30.10.2008

 

Reguleringsplan for Damvegen

PlanID: 4622 20090008
Prosjekt: Detaljreguleringsplan for skogsbilveg til fjellområde
Stad: Ålvik, Kvam herad
Planstatus: Vedteken 08.04.2014

 

Reguleringsplan for Grodalsåsen

PlanID: 4622 20100018
Prosjekt: Detaljreguleringsplan for bustadområde
Stad: Valland i Norheimsund, Kvam herad
Planstatus: Vedteken 08.06.2010

 

Reguleringsplan for Åsen, Øvre Haukås

PlanID: 4622 200700013
Prosjekt: Detaljreguleringsplan for fritidsbustadar
Stad: Hakås i Strandebarm, Kvam herad
Planstatus: Vedteken 18.12.2007

 

Utbyggingsplan for Hardanger folkemuseum


Prosjekt: Utbyggingsplan for museumsverksemd
Stad: Utne, Ullensvang kommune
Planstatus: Vedteken

 

Reguleringsplan for Perskog

PlanID: 4622 20060010
Prosjekt: Detaljreguleringsplan for fritidsbustadar
Stad: Kvamskogen, Kvam herad
Planstatus: Vedteken 05.09.2006

 

Reguleringsplan for Hegrehaugen II

PlanID: 4622 20020001
Prosjekt: Detaljreguleringsplan for bustadar i Vikøy
Stad: Vikøy, Kvam herad
Planstatus: Vedteken 07.03.2006