SKISSEPROSJEKT
TOMANNSBUSTAD

Prosjekt: Skisseprosjekt for tomannsbustad
Stad: Nordvik i Samnanger, Samnanger kommune
Oppdragsgjevar:
Periode: 2014

Prosjektansvarleg: Sivilarkitekt Ingvild Eikefjord MNAL

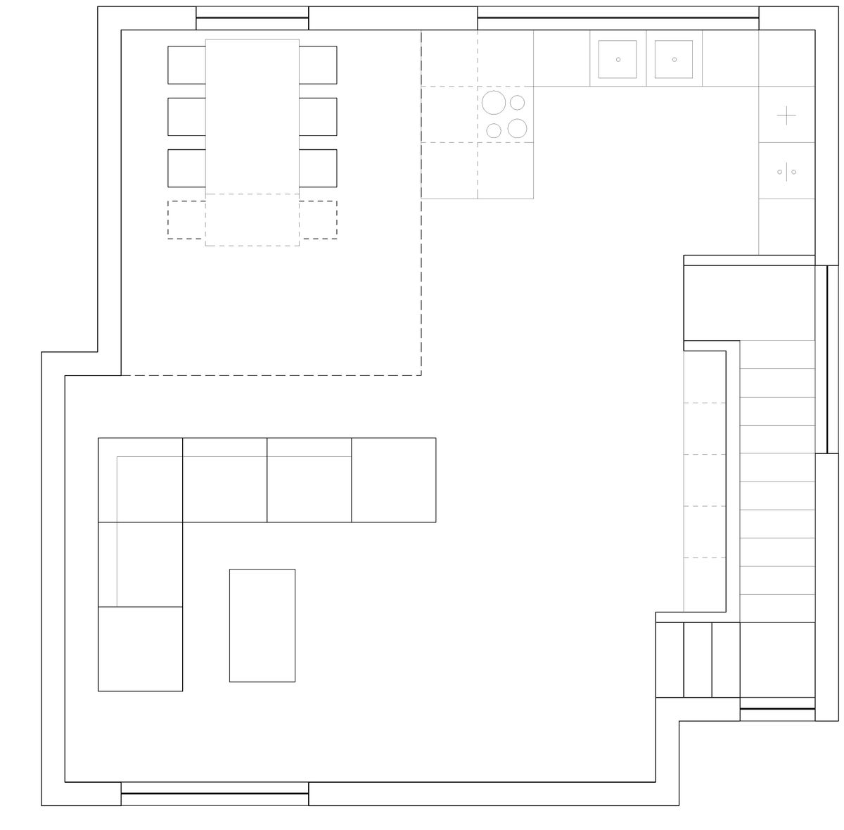
Utgangspunktet for skisseprosjektet var å utarbeide eit forslag til to- eller tremannsbustad med storleik på om lag 120 m2 per bueining. Tomta er situert i eit etablert bustadområde med hovudsakeleg einebustadar. Eigedomen ligg i hellande terreng, med gode soltilhøve og utsikt mot Bjørnefjorden frå øvste del av tomta.

Resultatet vart to adskilte bustader i tre, både over tre plan og med ein storleik på 120 m2. Ein har medviten vald å skilje seg ut frå eksisterande byggjestil i området med det flate taket og annleis formuttrykk. Bustadene er sett saman av fleire volum, noko som vert tydeleggjort i fargevalet på kledningen. Bustadene er lagt høgt opp på tomta, for å få utsyn mot fjorden frå 2. og 3. etasje. Grepet gir gode soltilhøve på uteareal og moglegheita til å sjå over bustadane i framkant. På bakkeplan er det tilrettelagt parkeringsareal, garasje/carport og overdekka inngangsparti. Ein kjem inn i entreen med vertikalkommunikasjon, garderobe og toalett. På andre plan er det stove/opphaldsareal med open kjøkenløysing og moglegheit for ekstra soverom. To soverom, baderom og utgong til terrasse er plassert øvst i bustaden.